咨询电话:400-128-7080
提示:丛一楼装饰向您承诺,您的个人隐私我们会严格保密!
来源:丛一楼装饰 更新时间: 2021-12-06
现代简约
案例风格
二居室
案例户型
110㎡
案例面积
市内楼盘
案例楼盘
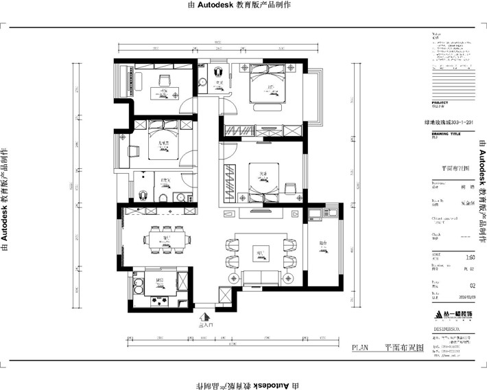
设计师:柯锋
楼 盘:绿地玫瑰城
面 积:136㎡
风 格:现代简约
造 价:11万
用 材:浅咖色乳胶漆、大理石、磨砂茶镜、地砖、地板、镜钢….
设计说明:
本案设计以现代风格为主辅以港式元素进行综合。更多的考虑是我们更人性化的生活方式,而不是一味追求过多的造型和如何去表现效果方面的美。在考虑实用主义为主的同时再去营造舒适的空间环境和港式的意境美。





