咨询电话:400-128-7080
提示:丛一楼装饰向您承诺,您的个人隐私我们会严格保密!
来源:丛一楼装饰 更新时间: 2021-12-13
现代简约
案例风格
二居室
案例户型
110㎡
案例面积
市内楼盘
案例楼盘
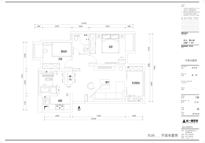
设计师:崔洪勇
楼 盘:中大青山湖东园
面 积:75平方
风 格:现代混搭
造 价:5.5万(半包)
设计说明:
设计师根据业主需求选择了在风格上做了混搭?在主色调和空间材质的选择上体现一种年代的风格,再用另一种年代风格的大家具和小物品来点缀。在房间基调上展现一种地域风格,再以色彩和装饰物来展现令一种地域风格。不同材质的物品展现不同的风格,把具有个人风格的木制家具、金属吊灯、复古瓷砖、手工物品等不同材质的物品在同一个空间里展示出来,就会碰撞出有趣的混搭设计。室内的每个空间都有其特定用途,这种风格的理念就是把两个空间在结构上和谐地结合在一起,达到使两个空间之间既能随意转换,又具有其独立性。






