咨询电话:400-128-7080
提示:丛一楼装饰向您承诺,您的个人隐私我们会严格保密!
来源:丛一楼装饰 更新时间: 2021-12-07
现代简约
案例风格
二居室
案例户型
110㎡
案例面积
市内楼盘
案例楼盘
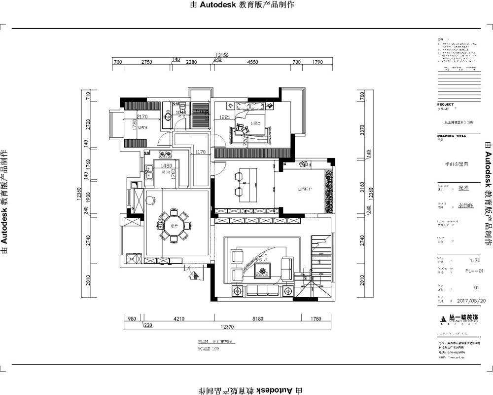
项目名称:九龙湖花园
项目面积:256平方
风格:美式
半包:24万(不包主材)
设计说明:什么样的设计!才能适合每一个时代,让居住者不厌倦,我们一直在寻找,装饰手法与现代科技相互隔合,让空间与线条组合起来,而更多的是留白。本案采用最大的特色是同色,异材质的叠加手法使用。异材质,同色系在不同的空间,配合灯光的使用,让室内空间产生一种耐人寻味的美

客厅

餐厅


主卧

过道

卧室

一楼平面布置图

二楼平面布置图

